-
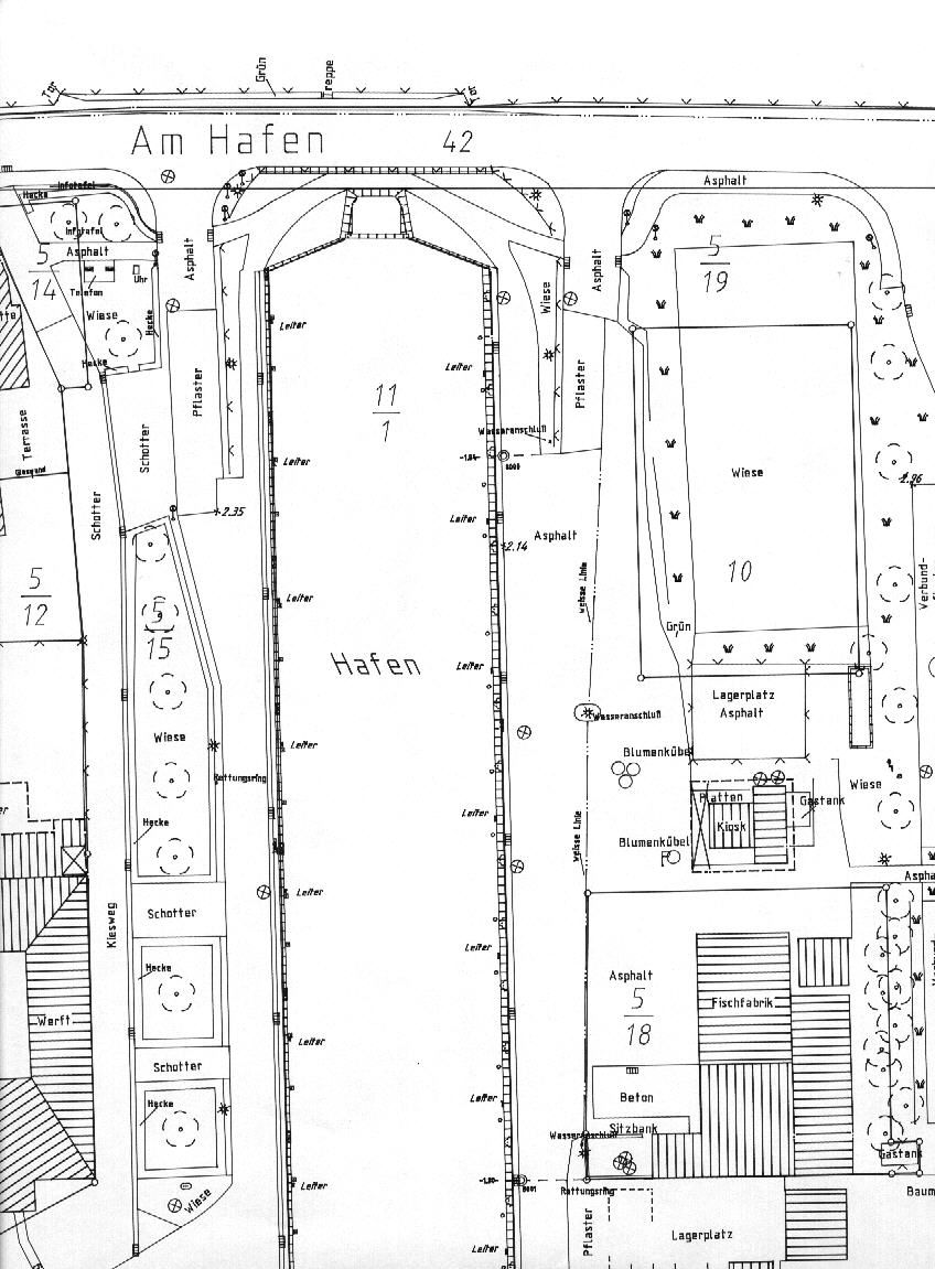
Lage- und Höhenpläne
Präzise Lage- und Höhenpläne für Bauanträge, Planungsaufgaben oder rechtliche Zwecke individuell nach Ihrem Bedarf.
-
Laserscanning
3D-Laserscans zur detaillierten Erfassung von Fassaden, Gebäuden und Infrastrukturen. Erzeugung von Plänen und 3D-Modellen für Endnutzer.
-
Absteckungen
Absteckungsarbeiten für Bauvorhaben aller Art, um sicherzustellen, dass alle Bauteile korrekt platziert werden. Wir führen Grob- und Feinabsteckungen durch. Bei Bedarf bauen wir Ihnen auch ein einfaches Schnurgerüst (Pfosten 40 mm x 60 mm, Schalbrett).
-
Bauwerksüberwachungen
Deformationsmessungen und Überwachung von Bauwerken während oder nach der Bauphase. Mögliche Vermessungen sind beispielsweise Nivellements zu Bestimmung feiner Höhenänderungen oder Lasersycans für Ebenheitskontrollen.